L02CR
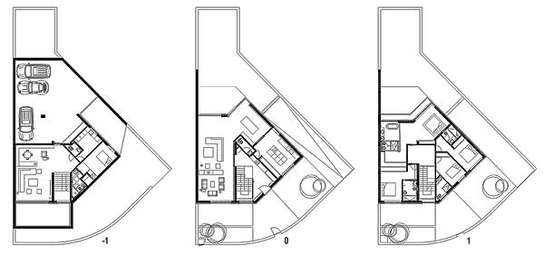
Dentro de uma volumetria quebrada articulam-se, através de gestos dinâmicos ou estáticos, espaços de circulação e de permanência. Noções de aberto e fechado, interior e exterior, luz e sombra foram sendo testadas para definir esta moradia.
Dentro de uma volumetria quebrada articulam-se, através de gestos dinâmicos ou estáticos, espaços de circulação e de permanência. Noções de aberto e fechado, interior e exterior, luz e sombra foram sendo testadas para definir esta moradia.